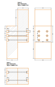
Tipologie di connettori e disposizioni
|
|
Per le unioni con connettori a gambo cilindrico sono in generale disponibili: bulloni, viti, chiodi, spinotti, barre con filettatura, barre resinate
|
|
I connettori possono essere disposti per file allineate o sfalsate oppure a raggiera
|
|
|
Per l’alloggiamento dei connettori è prevista anche in generale la possibilità di un “affondamento” nella trave per garantire maggiore protezione del connettore (es. resistenza al fuoco): |
|
|
Per le viti è disponibile un archivio delle tipologie più diffuse (VGZ, HBS)
|
|






